お知らせ・コラム
announce
【越谷市平方】2階リビングの中古戸建
\こんにちは!フレンドホーム売買センターです!/
関東甲信地方にも線状降水帯の発生予測が発表されました。
自治体からの避難に関する情報を確認したうえ、
早めの安全確保を心がけましょう。
✽.。.:*・゚ ✽.。.:*・゚ ✽.。.:*・゚ ✽.。.:*・゚ ✽.。.:*・゚
さて、本日は『越谷市平方の中古戸建』をご紹介したいと思います。
モダンな雰囲気のおしゃれな中古戸建です。
珍しい2階リビングを採用した間取り!
弊社売主のため、仲介手数料不要✨
【物件概要】
所在:越谷市平方
価格:2,980万円
築年:2010年3月
間取:4LDK
建物面積:117.58㎡
土地面積:166.73㎡

【外観】
モダンな雰囲気のおしゃれな外観です。
カースペースは2台駐車可能です。

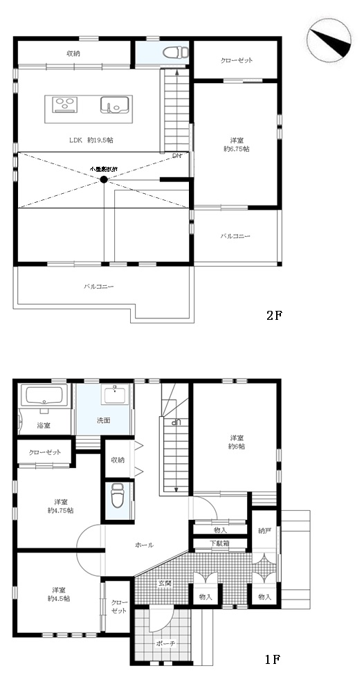
【間取図】
採光性・通風性の良い2階リビングを採用した間取りです。
LDKは吹抜けになっているので開放感があります♪
※後日、リフォーム完了後に室内写真を掲載いたします!
✽.。.:*・゚ ✽.。.:*・゚ ✽.。.:*・゚ ✽.。.:*・゚ ✽.。.:*・゚
「今すぐ見たい!」「一軒だけ見たい!」も大歓迎です☆
感染症予防対策を実施しております!
ご来店が不安な方はWEB相談も受付ております!!
お住まいの事ならなんでもお気軽にお問合せください^^
TEL:0120-864-863

